VENDITA AMPIO APPARTAMENTO IN LARGO STRINDBERG


VENDITA - RESIDENZIALE ROMA 70

Scheda Immobile


  • ROMA 70
    Zona
  • 395.000 €
    Prezzo
  • 4
    Locali
  • 3
    Camere
  • 3
    Servizi
  • 140 m2
    Superficie
  • terra
    Piano
  • centralizzato
    Riscaldamento
  • F
    Classe Energetica

Descrizione


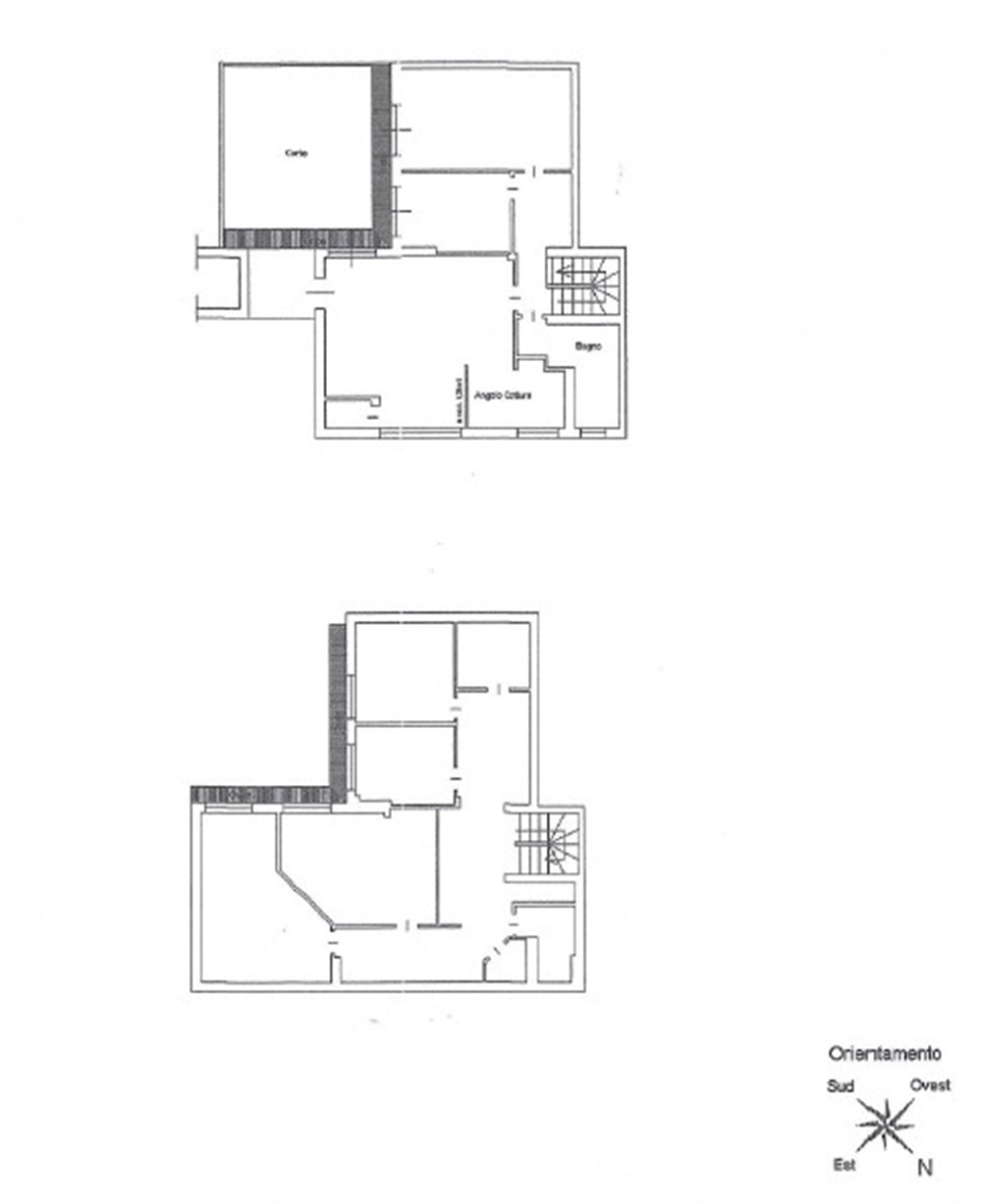
Nella tranquilla zona di Rinnovamento, ben servita, a pochi passi da tutti i servizi di prima necessità e dal Centro Commerciale I Granai, Realista Group propone in vendita un ampio appartamento di 140 mq, ideale per famiglie numerose o per chi necessita di grandi spazi abitativi.

L’immobile, su due livelli, completamente e finemente ristrutturato, si distingue per la razionale distribuzione degli ambienti e per le ottime finiture.

L'appartamento è composto da: Ampio salone con angolo cottura, 3 camere da letto, studio, 3 bagni, lavanderia e ampio terrazzo, ideale per momenti di relax all’aperto.

L’appartamento è dotato di impianti a norma, infissi in PVC con doppio vetro, che garantiscono comfort abitativo e ottimo isolamento termo-acustico.

Completa la proprietà:

Posto auto

Soluzione unica per metratura, posizione e qualità della ristrutturazione, perfetta per chi cerca tranquillità senza rinunciare alla comodità dei servizi.

Contattate oggi stesso Realista Group ai numeri 0651531015 o 3333586136 per ulteriori informazioni e per organizzare una visita. Siamo pronti a guidarvi attraverso il processo di acquisto e a offrirvi un servizio professionale e attento alle vostre esigenze.


*TUTTE LE INFORMAZIONI , PLANIMETRIE , DESCRIZIONI E CARATTERISCTICHE RIPORTATE NEL PRESENTE ANNUNCIO SONO MERAMENTE INDICATIVE E NON COSTITUISCONO IN ALCUN MODO ELEMENTI CONTRATTUALI*


Caratteristiche dell'immobile


AMPIA METRATURA ARIA CONDIZIONATA LUMINOSO POSTO AUTO RISTRUTTURATO TERRAZZO BILIVELLI RISCALDAMENTO CENTRALIZZATO RIPOSTIGLIO

Largo Sterindberg




STAMPA









CERCA